Sobre esta propiedad

  • 1
  • Dormitorio
  • 1
  • Baño
  • 61
  •  

Detalles de la propiedad

  • Precio 240,000€
  • Superficie construida 61
  • Dormitorio 1
  • Baño 1
  • Estado de propiedad Obra nueva
  • Tipo de propiedad Edificio
  • Zona comunitaria con piscina No

Descripción

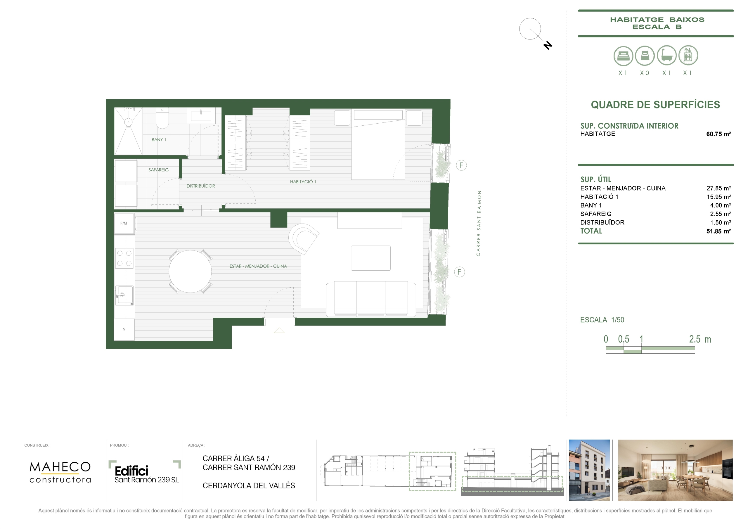
  • Edificio plurifamiliar de 7 viviendas en Cerdanyola del Vallès con plaza de aparcamiento y trastero incluido. Ubicado en la calle Sant Ramon, 239 y Àliga, 54, este edificio residencial ofrece una oportunidad única para vivir en una zona tranquila y bien comunicada de Cerdanyola del Vallès. El edificio se compone de 7 viviendas distribuidas en planta baja y tres plantas piso, con acceso a través de dos escaleras independientes: - Escalera A, con entrada por C/ Àliga, 54 - Escalera B, con entrada por C/ Sant Ramon, 239 Hay dos tipologías de vivienda: - Vivienda de 1 dormitorio: 60,75 m2 , cocina tipo office, 1 baño y lavadero. - Viviendas de 3 dormitorios; Desde 85 m2 , cocina tipo office, 2 baños, terraza y lavadero. Disponen de plaza de aparcamiento y trastero incluido en el precio , garantizando funcionalidad y comodidad en un entorno moderno y acogedor. La promoción Sant Ramon se encuentra muy bien ubicada: - Rodeada de servicios básicos como farmacias, cafeterías, colegios, restaurantes y pequeños comercios de proximidad. - Excelente conexión con transporte público y rápido acceso a la C-58 y AP-7. - A pocos metros del supermercado Bonpreu. - A 6 minutos en coche de Sant Cugat del Vallès - A 8 minutos en coche de la estación de RENFE de Cerdanyola. - A 9 minutos de la estación de FGC de la Universitat Autònoma. Nuestro Departamento Comercial organiza visitas personalizadas en el showroom ubicado en nuestras oficinas (calle Camèlies, 13 de Cerdanyola del Vallès). Fecha prevista de entrega: 4to trimestre 2026. ¡En Maheco, hacemos realidad tu vivienda!

Descargas

Planos Comerciales
_Memoria calidades Áliga

Pedir información

Otras casas dentro de la misma categoría

¿Quieres hablar con nosotros?

Por favor, llámanos al 930 268 332, o déjanos tus datos y nos pondremos en contacto contigo muy pronto. ¡Gracias!

Comparar listados

Comparar
MAHECO
  • MAHECO